- Kajang
- Open Registration (Early Bird Offer)
ATS Armani Industrial Park Kajang
ATS Armani Industrial Park Kajang offers modern, high-spec industrial units designed for SMEs and growing businesses. Enjoy strategic accessibility, secure facilities, and excellent connectivity within Kajang’s thriving industrial hub.
Key Features

53-Acre Industrial Hub
A large, well-planned industrial park designed to support diverse business operations

Prime Strategic Location
Centrally positioned to offer quick access to key markets and major transport routes

Multimodal Connectivity
Seamless access to highways, ports, and airports for efficient logistics and distribution

World-Class Infrastructure
Equipped with modern, high-standard facilities that meet global industrial requirements

Built for Business Growth
Created to support expanding enterprises with scalable spaces and flexible infrastructure

Health-Focused & Sustainable Design
Built with wellness, green practices, and long-term environmental responsibility in mind
Centrally Strategic
Strategically located in Kajang’s growing economic hub, Kajang Industrial Park offers exceptional connectivity to major highways and key transportation routes.
- SILK Highway (5 Mins)
- SKVE Expressway (4 Mins)
- North South Highway (7 Mins)
- Cheras Kajang Highway (9 Mins)
- Shah Alam Expressway (31 Mins)
- KLIA Expressway (35 Mins)
- MRT Sungai Jernih Station (7 Mins)
- MRT Stadium Kajang Station (10 Mins)
- MRT Bukit Dukung Station (12 Mins)
- Asta Industrial Park (4 Mins)
- Balakong Industrial Park (15 Mins)
- Semenyih Hi Tech Ind. Park (22 Mins)
Master Plan
Explore ATS Armani Industrial Park Kajang’s master plan showcasing 3-storey Semi-D factory units with functional front entrances, ideal for SMEs and industrial operations.
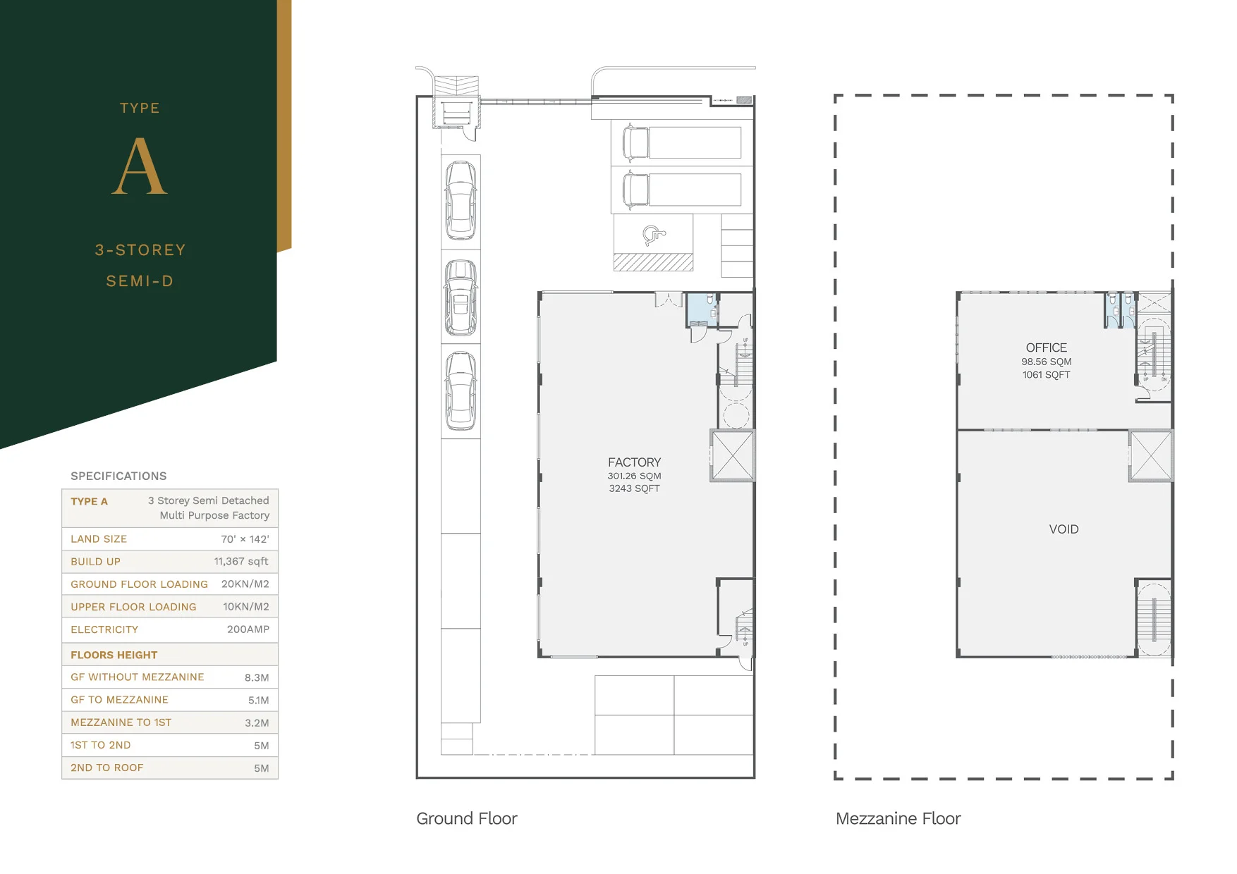
- Semi-D Factory ( Type A ) - 42 Units
- Semi-D Factory ( Type B ) - 66 Units
- Single Storey Terrace Factory - 48 Units
- Centralized Labour Quarters ( CLQ) - 600 Beds
Unit Layout
ATS Armani Industrial Park Kajang offers versatile Type A & Type B industrial unit layouts built for high functionality, business expansion, and smart industrial operations.






Register for an exclusive tour of our Sales Gallery.